Мы используем файлы cookie для анализа событий на нашем веб-сайте, а также обрабатываем персональные данные с помощью Яндекс Метрики, что позволяет нам улучшать взаимодействие пользователя c сайтом. Продолжая просмотр страниц нашего сайта, вы принимаете условия Политики в отношении файлов Cookie. Заблокировать использование cookies сайтом можно в настройках браузера.
Офис продаж в г. Тюмень
Заполняя форму, вы соглашаетесь на обработку персональных данных
Спасибо за заявку
Мы свяжемся с вами в течение рабочего дня

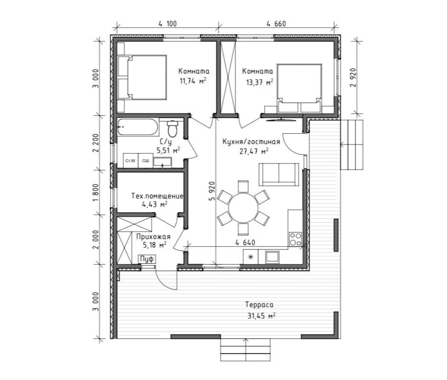
Одноэтажный дом с большой террасой.
80 м²площадь
1 этажЭтажность
6,6 х 12,1 мГабариты
Каркасная технологияМатериал стен
Цена в комплектации "Теплый контур"
В доме с комфортом разместится семья из 4-х человек. В распоряжении хозяев — кухня-гостиная с выходом на закрытую с трёх сторон террасу; тамбур на входе, который не пропустит холодный воздух в комнаты; техпомещение, небольшая ванная и 2 спальни по 10 квадратов.
И, конечно, фишка проекта — оригинальный внешний вид в актуальном стиле «Барнхаус».
Фундамент с монтажом
Железобетонные сваи
Силовой каркас
Пиломатериал камерной сушки
Кровля
Металлочерепица / Профилированный лист / ПВХ мембрана
Теплый контур
Утепление, остекление. Отделка: фасад - ОСБ, стены внутри - ГКЛ
Укажите ваш номер и мы перезвоним в рабочее время с 8:00 до 16:00 по МСК.
Отвечает эксперт
Павел Сухинин
Ведущий специалист
Заполняя форму, вы соглашаетесь на обработку персональных данных.
Кредит
Учтем все ваши пожелания. Дадим смету на разработанный проект. Можно не приезжать в офис – всё сделаем дистанционно
Этапная оплата
Четырьмя траншами. Оплата стенового комплекта, фундамента, монтажа коробки дома и кровли.
Срок изготовления стенового комплекта
Зависит от загрузки производства. В среднем в течение месяца.
Оплата всей суммы целиком
С фиксацией стоимости материалов и услуг.
Сроки монтажа домов
Как правило от 6 до 12 недель, в зависимости от размера и сложности строения.
Кредит
Учтем все ваши пожелания. Дадим смету на разработанный проект. Можно не приезжать в офис – всё сделаем дистанционно
Этапная оплата
Четырьмя траншами. Оплата стенового комплекта, фундамента, монтажа коробки дома и кровли.
Срок изготовления стенового комплекта
Зависит от загрузки производства. В среднем в течении месяца.
Оплата всей суммы целиком
С фиксацией стоимости материалов и услуг.
Сроки монтажа домов
Как правило от 6 до 12 недель, в зависимости от размера и сложности строения.
Нужна помощь с кредитом?
Наш кредитный брокер поможет подобрать самые выгодные предложения.
Заполняя форму, вы соглашаетесь на обработку персональных данных.
Запросите консультацию
С удовольствием расскажем об особенностях выбора материалов
Павел Сухинин
Ведущий специалист
Каркасная технология
Недорого, быстро. Строим даже зимой!
MHM-панели
Экологично, без усадки, панели заводской готовности.
Клееный брус
Не деформируется, не трескается, почти без усадки.

2 квартал 2023 г. 150 м²


4 квартал 2023 г. 150 м²


4 квартал 2023 г. 150 м²


4 квартал 2023 г. 150 м²


2 квартал 2023 г. 150 м²


3 квартал 2023 г. 150 м²

Запишитесь на экскурсию по готовым объектам
Хотите посмотреть построенные нами дома и оценить качество строительства вживую? Просто заполните форму.
Заполняя форму, вы соглашаетесь на обработку персональных данных.
Пышма
Одноэтажный дом с террасой80 м²
от 5 850 000 ₽
от 6 435 000 ₽
Сосновка
Дом в стиле хай-тек99 м²
от 6 110 000 ₽
от 6 721 000 ₽
Андреевский
Одноэтажный дом в современном стиле83 м²
от 5 650 000 ₽
от 6 215 000 ₽
Троицкий
Компактный дом с двумя спальнями80 м²
от 4 970 000 ₽
от 5 467 000 ₽
Барино
Большой барнхаус150 м²
от 6 430 000 ₽
от 7 073 000 ₽
Малышева
Миниатюрный дом с антресолью36 м²
от 2 450 000 ₽
от 2 695 000 ₽
Малиновка
Дом в финском стиле с тремя спальнями110 м²
от 7 720 000 ₽
от 8 492 000 ₽

Дом в стиле хай-тек.
99 м²площадь
1 этажЭтажность
9 х 12 мГабариты
Каркасная технологияМатериал стен
Цена в комплектации "Теплый контур"
Этот дом представляет собой одноэтажное здание современного стиля с плоской крышей. Фасад выполнен в темных и светлых тонах, что создает стильный контраст. Большие окна обеспечивают хорошее естественное освещение внутри помещений.
Дом прекрасно подойдет для отдыха – этому способствуют большая кухня-гостиная и просторная терраса, где с комфортом смогут разместиться и вся семья, и гости.
Фундамент с монтажом
Железобетонные сваи
Силовой каркас
Пиломатериал камерной сушки
Кровля
Металлочерепица / Профилированный лист / ПВХ мембрана
Теплый контур
Утепление, остекление. Отделка: фасад - ОСБ, стены внутри - ГКЛ
Укажите ваш номер и мы перезвоним в рабочее время с 8:00 до 16:00 по МСК.
Отвечает эксперт
Павел Сухинин
Ведущий специалист
Заполняя форму, вы соглашаетесь на обработку персональных данных.
Кредит
Учтем все ваши пожелания. Дадим смету на разработанный проект. Можно не приезжать в офис – всё сделаем дистанционно
Этапная оплата
Четырьмя траншами. Оплата стенового комплекта, фундамента, монтажа коробки дома и кровли.
Срок изготовления стенового комплекта
Зависит от загрузки производства. В среднем в течение месяца.
Оплата всей суммы целиком
С фиксацией стоимости материалов и услуг.
Сроки монтажа домов
Как правило от 6 до 12 недель, в зависимости от размера и сложности строения.
Кредит
Учтем все ваши пожелания. Дадим смету на разработанный проект. Можно не приезжать в офис – всё сделаем дистанционно
Этапная оплата
Четырьмя траншами. Оплата стенового комплекта, фундамента, монтажа коробки дома и кровли.
Срок изготовления стенового комплекта
Зависит от загрузки производства. В среднем в течении месяца.
Оплата всей суммы целиком
С фиксацией стоимости материалов и услуг.
Сроки монтажа домов
Как правило от 6 до 12 недель, в зависимости от размера и сложности строения.
Нужна помощь с кредитом?
Наш кредитный брокер поможет подобрать самые выгодные предложения.
Заполняя форму, вы соглашаетесь на обработку персональных данных.
Запросите консультацию
С удовольствием расскажем об особенностях выбора материалов
Павел Сухинин
Ведущий специалист
Каркасная технология
Недорого, быстро. Строим даже зимой!
MHM-панели
Экологично, без усадки, панели заводской готовности.
Клееный брус
Не деформируется, не трескается, почти без усадки.

2 квартал 2023 г. 150 м²


4 квартал 2023 г. 150 м²


4 квартал 2023 г. 150 м²


4 квартал 2023 г. 150 м²


2 квартал 2023 г. 150 м²


3 квартал 2023 г. 150 м²

Запишитесь на экскурсию по готовым объектам
Хотите посмотреть построенные нами дома и оценить качество строительства вживую? Просто заполните форму.
Заполняя форму, вы соглашаетесь на обработку персональных данных.
Пышма
Одноэтажный дом с террасой80 м²
от 5 850 000 ₽
от 6 435 000 ₽
Андреевский
Одноэтажный дом в современном стиле83 м²
от 5 650 000 ₽
от 6 215 000 ₽
Троицкий
Компактный дом с двумя спальнями80 м²
от 4 970 000 ₽
от 5 467 000 ₽
Барино
Большой барнхаус150 м²
от 6 430 000 ₽
от 7 073 000 ₽
Малышева
Миниатюрный дом с антресолью36 м²
от 2 450 000 ₽
от 2 695 000 ₽
Малиновка
Дом в финском стиле с тремя спальнями110 м²
от 7 720 000 ₽
от 8 492 000 ₽

Одноэтажный дом в современном стиле.
83 м²площадь
1 этажЭтажность
10 х 8 мГабариты
Каркасная технологияМатериал стен
Цена в комплектации "Теплый контур"
Стильный дом с лаконичным темным фасадом.
В проекте предусмотрена уютная гостиная с кухонной зоной, удобно расположенной в нише. Несмотря на компактную площадь имеются 2 спальни с местом под встроенные шкафы.
Приятный бонус — терраса (12 м²), где можно разместить подвесное кресло и кофейный столик.
Фундамент с монтажом
Железобетонные сваи
Силовой каркас
Пиломатериал камерной сушки
Кровля
Металлочерепица / Профилированный лист / ПВХ мембрана
Теплый контур
Утепление, остекление. Отделка: фасад - ОСБ, стены внутри - ГКЛ
Укажите ваш номер и мы перезвоним в рабочее время с 8:00 до 16:00 по МСК.
Отвечает эксперт
Павел Сухинин
Ведущий специалист
Заполняя форму, вы соглашаетесь на обработку персональных данных.
Кредит
Учтем все ваши пожелания. Дадим смету на разработанный проект. Можно не приезжать в офис – всё сделаем дистанционно
Этапная оплата
Четырьмя траншами. Оплата стенового комплекта, фундамента, монтажа коробки дома и кровли.
Срок изготовления стенового комплекта
Зависит от загрузки производства. В среднем в течение месяца.
Оплата всей суммы целиком
С фиксацией стоимости материалов и услуг.
Сроки монтажа домов
Как правило от 6 до 12 недель, в зависимости от размера и сложности строения.
Кредит
Учтем все ваши пожелания. Дадим смету на разработанный проект. Можно не приезжать в офис – всё сделаем дистанционно
Этапная оплата
Четырьмя траншами. Оплата стенового комплекта, фундамента, монтажа коробки дома и кровли.
Срок изготовления стенового комплекта
Зависит от загрузки производства. В среднем в течении месяца.
Оплата всей суммы целиком
С фиксацией стоимости материалов и услуг.
Сроки монтажа домов
Как правило от 6 до 12 недель, в зависимости от размера и сложности строения.
Нужна помощь с кредитом?
Наш кредитный брокер поможет подобрать самые выгодные предложения.
Заполняя форму, вы соглашаетесь на обработку персональных данных.
Запросите консультацию
С удовольствием расскажем об особенностях выбора материалов
Павел Сухинин
Ведущий специалист
Каркасная технология
Недорого, быстро. Строим даже зимой!
MHM-панели
Экологично, без усадки, панели заводской готовности.
Клееный брус
Не деформируется, не трескается, почти без усадки.

2 квартал 2023 г. 150 м²


4 квартал 2023 г. 150 м²


4 квартал 2023 г. 150 м²


4 квартал 2023 г. 150 м²


2 квартал 2023 г. 150 м²


3 квартал 2023 г. 150 м²

Запишитесь на экскурсию по готовым объектам
Хотите посмотреть построенные нами дома и оценить качество строительства вживую? Просто заполните форму.
Заполняя форму, вы соглашаетесь на обработку персональных данных.
Пышма
Одноэтажный дом с террасой80 м²
от 5 850 000 ₽
от 6 435 000 ₽
Сосновка
Дом в стиле хай-тек99 м²
от 6 110 000 ₽
от 6 721 000 ₽
Троицкий
Компактный дом с двумя спальнями80 м²
от 4 970 000 ₽
от 5 467 000 ₽
Барино
Большой барнхаус150 м²
от 6 430 000 ₽
от 7 073 000 ₽
Малышева
Миниатюрный дом с антресолью36 м²
от 2 450 000 ₽
от 2 695 000 ₽
Малиновка
Дом в финском стиле с тремя спальнями110 м²
от 7 720 000 ₽
от 8 492 000 ₽

Компактный дом с двумя спальнями.
62 м²площадь
1 этажЭтажность
5,5 х 9 мГабариты
Каркасная технологияМатериал стен
Цена в комплектации "Теплый контур"
Небольшой коттедж, который отлично подойдет для сезонного проживания или сдачи в аренду.
Планировка лишена коридоров¸ поэтому каждый метр пространства функционален. Кухня удобно расположена в нише, в гостевой зоне – высокие потолки и два ряда остекления, что создает комфортную атмосферу, наполненную светом и воздухом.
Фундамент с монтажом
Железобетонные сваи
Силовой каркас
Пиломатериал камерной сушки
Кровля
Металлочерепица / Профилированный лист / ПВХ мембрана
Теплый контур
Утепление, остекление. Отделка: фасад - ОСБ, стены внутри - ГКЛ
Укажите ваш номер и мы перезвоним в рабочее время с 8:00 до 16:00 по МСК.
Отвечает эксперт
Павел Сухинин
Ведущий специалист
Заполняя форму, вы соглашаетесь на обработку персональных данных.
Кредит
Учтем все ваши пожелания. Дадим смету на разработанный проект. Можно не приезжать в офис – всё сделаем дистанционно
Этапная оплата
Четырьмя траншами. Оплата стенового комплекта, фундамента, монтажа коробки дома и кровли.
Срок изготовления стенового комплекта
Зависит от загрузки производства. В среднем в течение месяца.
Оплата всей суммы целиком
С фиксацией стоимости материалов и услуг.
Сроки монтажа домов
Как правило от 6 до 12 недель, в зависимости от размера и сложности строения.
Кредит
Учтем все ваши пожелания. Дадим смету на разработанный проект. Можно не приезжать в офис – всё сделаем дистанционно
Этапная оплата
Четырьмя траншами. Оплата стенового комплекта, фундамента, монтажа коробки дома и кровли.
Срок изготовления стенового комплекта
Зависит от загрузки производства. В среднем в течении месяца.
Оплата всей суммы целиком
С фиксацией стоимости материалов и услуг.
Сроки монтажа домов
Как правило от 6 до 12 недель, в зависимости от размера и сложности строения.
Нужна помощь с кредитом?
Наш кредитный брокер поможет подобрать самые выгодные предложения.
Заполняя форму, вы соглашаетесь на обработку персональных данных.
Запросите консультацию
С удовольствием расскажем об особенностях выбора материалов
Павел Сухинин
Ведущий специалист
Каркасная технология
Недорого, быстро. Строим даже зимой!
MHM-панели
Экологично, без усадки, панели заводской готовности.
Клееный брус
Не деформируется, не трескается, почти без усадки.

2 квартал 2023 г. 150 м²


4 квартал 2023 г. 150 м²


4 квартал 2023 г. 150 м²


4 квартал 2023 г. 150 м²


2 квартал 2023 г. 150 м²


3 квартал 2023 г. 150 м²

Запишитесь на экскурсию по готовым объектам
Хотите посмотреть построенные нами дома и оценить качество строительства вживую? Просто заполните форму.
Заполняя форму, вы соглашаетесь на обработку персональных данных.
Пышма
Одноэтажный дом с террасой80 м²
от 5 850 000 ₽
от 6 435 000 ₽
Сосновка
Дом в стиле хай-тек99 м²
от 6 110 000 ₽
от 6 721 000 ₽
Андреевский
Одноэтажный дом в современном стиле83 м²
от 5 650 000 ₽
от 6 215 000 ₽
Барино
Большой барнхаус150 м²
от 6 430 000 ₽
от 7 073 000 ₽
Малышева
Миниатюрный дом с антресолью36 м²
от 2 450 000 ₽
от 2 695 000 ₽
Малиновка
Дом в финском стиле с тремя спальнями110 м²
от 7 720 000 ₽
от 8 492 000 ₽

Впечатляющий дом в стиле барнхаус.
150 м²площадь
2 этажаЭтажность
14,3 х 8 мГабариты
Каркасная технологияМатериал стен
Цена в комплектации "Теплый контур"
Коттедж подойдет для постоянного проживания семьи из 4-5 человек.
Самым эффектным помещением в доме является гостиная, поскольку имеет не только панорамное остекление, но и высокие потолки второго света.
На втором этаже площадь позволяет устроить многозональную мастер- спальню, разместив там большую кровать, рабочее место и гардероб.
Фундамент с монтажом
Железобетонные сваи
Силовой каркас
Пиломатериал камерной сушки
Кровля
Металлочерепица / Профилированный лист / ПВХ мембрана
Теплый контур
Утепление, остекление. Отделка: фасад - ОСБ, стены внутри - ГКЛ
Укажите ваш номер и мы перезвоним в рабочее время с 8:00 до 16:00 по МСК.
Отвечает эксперт
Павел Сухинин
Ведущий специалист
Заполняя форму, вы соглашаетесь на обработку персональных данных.
Кредит
Учтем все ваши пожелания. Дадим смету на разработанный проект. Можно не приезжать в офис – всё сделаем дистанционно
Этапная оплата
Четырьмя траншами. Оплата стенового комплекта, фундамента, монтажа коробки дома и кровли.
Срок изготовления стенового комплекта
Зависит от загрузки производства. В среднем в течение месяца.
Оплата всей суммы целиком
С фиксацией стоимости материалов и услуг.
Сроки монтажа домов
Как правило от 6 до 12 недель, в зависимости от размера и сложности строения.
Кредит
Учтем все ваши пожелания. Дадим смету на разработанный проект. Можно не приезжать в офис – всё сделаем дистанционно
Этапная оплата
Четырьмя траншами. Оплата стенового комплекта, фундамента, монтажа коробки дома и кровли.
Срок изготовления стенового комплекта
Зависит от загрузки производства. В среднем в течении месяца.
Оплата всей суммы целиком
С фиксацией стоимости материалов и услуг.
Сроки монтажа домов
Как правило от 6 до 12 недель, в зависимости от размера и сложности строения.
Нужна помощь с кредитом?
Наш кредитный брокер поможет подобрать самые выгодные предложения.
Заполняя форму, вы соглашаетесь на обработку персональных данных.
Запросите консультацию
С удовольствием расскажем об особенностях выбора материалов
Павел Сухинин
Ведущий специалист
Каркасная технология
Недорого, быстро. Строим даже зимой!
MHM-панели
Экологично, без усадки, панели заводской готовности.
Клееный брус
Не деформируется, не трескается, почти без усадки.

2 квартал 2023 г. 150 м²


4 квартал 2023 г. 150 м²


4 квартал 2023 г. 150 м²


4 квартал 2023 г. 150 м²


2 квартал 2023 г. 150 м²


3 квартал 2023 г. 150 м²

Запишитесь на экскурсию по готовым объектам
Хотите посмотреть построенные нами дома и оценить качество строительства вживую? Просто заполните форму.
Заполняя форму, вы соглашаетесь на обработку персональных данных.
Пышма
Одноэтажный дом с террасой80 м²
от 5 850 000 ₽
от 6 435 000 ₽
Сосновка
Дом в стиле хай-тек99 м²
от 6 110 000 ₽
от 6 721 000 ₽
Андреевский
Одноэтажный дом в современном стиле83 м²
от 5 650 000 ₽
от 6 215 000 ₽
Троицкий
Компактный дом с двумя спальнями80 м²
от 4 970 000 ₽
от 5 467 000 ₽
Малышева
Миниатюрный дом с антресолью36 м²
от 2 450 000 ₽
от 2 695 000 ₽
Малиновка
Дом в финском стиле с тремя спальнями110 м²
от 7 720 000 ₽
от 8 492 000 ₽

Миниатюрный дом с антресолью.
36 м²площадь
2 этажаЭтажность
9 х 5,2 мГабариты
Каркасная технологияМатериал стен
Цена в комплектации "Теплый контур"
Дом, который отлично подойдет в качестве дачи или как объект для сдачи в аренду.
При своих компактных габаритах дом вмещает кухню- гостиную с мягкой зоной и рабочим местом, удобный санузел, прихожую, где достаточно места для вместительного шкафа.
На уютной антресоли без проблем можно разместить двуспальную кровать.
Фундамент с монтажом
Железобетонные сваи
Силовой каркас
Пиломатериал камерной сушки
Кровля
Металлочерепица / Профилированный лист / ПВХ мембрана
Теплый контур
Утепление, остекление. Отделка: фасад - ОСБ, стены внутри - ГКЛ
Укажите ваш номер и мы перезвоним в рабочее время с 8:00 до 16:00 по МСК.
Отвечает эксперт
Павел Сухинин
Ведущий специалист
Заполняя форму, вы соглашаетесь на обработку персональных данных.
Кредит
Учтем все ваши пожелания. Дадим смету на разработанный проект. Можно не приезжать в офис – всё сделаем дистанционно
Этапная оплата
Четырьмя траншами. Оплата стенового комплекта, фундамента, монтажа коробки дома и кровли.
Срок изготовления стенового комплекта
Зависит от загрузки производства. В среднем в течение месяца.
Оплата всей суммы целиком
С фиксацией стоимости материалов и услуг.
Сроки монтажа домов
Как правило от 6 до 12 недель, в зависимости от размера и сложности строения.
Кредит
Учтем все ваши пожелания. Дадим смету на разработанный проект. Можно не приезжать в офис – всё сделаем дистанционно
Этапная оплата
Четырьмя траншами. Оплата стенового комплекта, фундамента, монтажа коробки дома и кровли.
Срок изготовления стенового комплекта
Зависит от загрузки производства. В среднем в течении месяца.
Оплата всей суммы целиком
С фиксацией стоимости материалов и услуг.
Сроки монтажа домов
Как правило от 6 до 12 недель, в зависимости от размера и сложности строения.
Нужна помощь с кредитом?
Наш кредитный брокер поможет подобрать самые выгодные предложения.
Заполняя форму, вы соглашаетесь на обработку персональных данных.
Запросите консультацию
С удовольствием расскажем об особенностях выбора материалов
Павел Сухинин
Ведущий специалист
Каркасная технология
Недорого, быстро. Строим даже зимой!
MHM-панели
Экологично, без усадки, панели заводской готовности.
Клееный брус
Не деформируется, не трескается, почти без усадки.

2 квартал 2023 г. 150 м²


4 квартал 2023 г. 150 м²


4 квартал 2023 г. 150 м²


4 квартал 2023 г. 150 м²


2 квартал 2023 г. 150 м²


3 квартал 2023 г. 150 м²

Запишитесь на экскурсию по готовым объектам
Хотите посмотреть построенные нами дома и оценить качество строительства вживую? Просто заполните форму.
Заполняя форму, вы соглашаетесь на обработку персональных данных.
Пышма
Одноэтажный дом с террасой80 м²
от 5 850 000 ₽
от 6 435 000 ₽
Сосновка
Дом в стиле хай-тек99 м²
от 6 110 000 ₽
от 6 721 000 ₽
Андреевский
Одноэтажный дом в современном стиле83 м²
от 5 650 000 ₽
от 6 215 000 ₽
Троицкий
Компактный дом с двумя спальнями80 м²
от 4 970 000 ₽
от 5 467 000 ₽
Барино
Большой барнхаус150 м²
от 6 430 000 ₽
от 7 073 000 ₽
Малиновка
Дом в финском стиле с тремя спальнями110 м²
от 7 720 000 ₽
от 8 492 000 ₽

Дом в финском стиле с тремя спальнями.
110 м²площадь
1 этажЭтажность
14,2 х 9,3 мГабариты
Каркасная технологияМатериал стен
Цена в комплектации "Теплый контур"
Комфортный семейный дом.
У входа отличная вместительная гардеробная, а в прихожей без проблем разместится шкаф для ежедневной верхней одежды.
Просторная гостиная-столовая со вторым светом, площадью 30 кв.м., у больших окон прекрасно расположится диванная зона и большой обеденный стол.
Особенно удобно размещение кухни, в смежном помещении с гостиной-столовой – воспринимается как единое пространство, но в тоже время несколько обособлена. Из кухни есть выход на террасу.
Фундамент с монтажом
Железобетонные сваи
Силовой каркас
Пиломатериал камерной сушки
Кровля
Металлочерепица / Профилированный лист / ПВХ мембрана
Теплый контур
Утепление, остекление. Отделка: фасад - ОСБ, стены внутри - ГКЛ
Укажите ваш номер и мы перезвоним в рабочее время с 8:00 до 16:00 по МСК.
Отвечает эксперт
Павел Сухинин
Ведущий специалист
Заполняя форму, вы соглашаетесь на обработку персональных данных.
Кредит
Учтем все ваши пожелания. Дадим смету на разработанный проект. Можно не приезжать в офис – всё сделаем дистанционно
Этапная оплата
Четырьмя траншами. Оплата стенового комплекта, фундамента, монтажа коробки дома и кровли.
Срок изготовления стенового комплекта
Зависит от загрузки производства. В среднем в течение месяца.
Оплата всей суммы целиком
С фиксацией стоимости материалов и услуг.
Сроки монтажа домов
Как правило от 6 до 12 недель, в зависимости от размера и сложности строения.
Кредит
Учтем все ваши пожелания. Дадим смету на разработанный проект. Можно не приезжать в офис – всё сделаем дистанционно
Этапная оплата
Четырьмя траншами. Оплата стенового комплекта, фундамента, монтажа коробки дома и кровли.
Срок изготовления стенового комплекта
Зависит от загрузки производства. В среднем в течении месяца.
Оплата всей суммы целиком
С фиксацией стоимости материалов и услуг.
Сроки монтажа домов
Как правило от 6 до 12 недель, в зависимости от размера и сложности строения.
Нужна помощь с кредитом?
Наш кредитный брокер поможет подобрать самые выгодные предложения.
Заполняя форму, вы соглашаетесь на обработку персональных данных.
Запросите консультацию
С удовольствием расскажем об особенностях выбора материалов
Павел Сухинин
Ведущий специалист
Каркасная технология
Недорого, быстро. Строим даже зимой!
MHM-панели
Экологично, без усадки, панели заводской готовности.
Клееный брус
Не деформируется, не трескается, почти без усадки.

2 квартал 2023 г. 150 м²


4 квартал 2023 г. 150 м²


4 квартал 2023 г. 150 м²


4 квартал 2023 г. 150 м²


2 квартал 2023 г. 150 м²


3 квартал 2023 г. 150 м²

Запишитесь на экскурсию по готовым объектам
Хотите посмотреть построенные нами дома и оценить качество строительства вживую? Просто заполните форму.
Заполняя форму, вы соглашаетесь на обработку персональных данных.
Пышма
Одноэтажный дом с террасой80 м²
от 5 850 000 ₽
от 6 435 000 ₽
Сосновка
Дом в стиле хай-тек99 м²
от 6 110 000 ₽
от 6 721 000 ₽
Андреевский
Одноэтажный дом в современном стиле83 м²
от 5 650 000 ₽
от 6 215 000 ₽
Троицкий
Компактный дом с двумя спальнями80 м²
от 4 970 000 ₽
от 5 467 000 ₽
Барино
Большой барнхаус150 м²
от 6 430 000 ₽
от 7 073 000 ₽
Малышева
Миниатюрный дом с антресолью36 м²
от 2 450 000 ₽
от 2 695 000 ₽
Поможем с выбором
Оставьте заявку и мы вам
перезвоним
Выполняем все работы до озеленения и обустройства участка.
Пышма
Одноэтажный дом с террасой80 м²
от 5 850 000 ₽
от 6 435 000 ₽
Сосновка
Дом в стиле хай-тек99 м²
от 6 110 000 ₽
от 6 721 000 ₽
Андреевский
Одноэтажный дом в современном стиле83 м²
от 5 650 000 ₽
от 6 215 000 ₽
Троицкий
Компактный дом с двумя спальнями80 м²
от 4 970 000 ₽
от 5 467 000 ₽
Барино
Большой барнхаус150 м²
от 6 430 000 ₽
от 7 073 000 ₽
Малышева
Миниатюрный дом с антресолью36 м²
от 2 450 000 ₽
от 2 695 000 ₽
Малиновка
Дом в финском стиле с тремя спальнями110 м²
от 7 720 000 ₽
от 8 492 000 ₽
Скидка 10% на всю линейку каркасных домов до 31 августа 2025 года.
* Не является публичной офертой. Подробности у менеджеров компании по указанным на сайте телефонам.
Укажите ваш номер и мы перезвоним в рабочее время с 8:00 до 16:00 по МСК.
Отвечает эксперт
Павел Сухинин
Ведущий специалист
Заполняя форму, вы соглашаетесь на обработку персональных данных.
Кредит
Учтем все ваши пожелания. Дадим смету на разработанный проект. Можно не приезжать в офис – всё сделаем дистанционно
Этапная оплата
Четырьмя траншами. Оплата стенового комплекта, фундамента, монтажа коробки дома и кровли.
Срок изготовления стенового комплекта
Зависит от загрузки производства. В среднем в течение месяца.
Оплата всей суммы целиком
С фиксацией стоимости материалов и услуг.
Сроки монтажа домов
Как правило от 6 до 12 недель, в зависимости от размера и сложности строения.
Кредит
Учтем все ваши пожелания. Дадим смету на разработанный проект. Можно не приезжать в офис – всё сделаем дистанционно
Этапная оплата
Четырьмя траншами. Оплата стенового комплекта, фундамента, монтажа коробки дома и кровли.
Срок изготовления стенового комплекта
Зависит от загрузки производства. В среднем в течении месяца.
Оплата всей суммы целиком
С фиксацией стоимости материалов и услуг.
Сроки монтажа домов
Как правило от 6 до 12 недель, в зависимости от размера и сложности строения.
Фиксируем стоимость и сроки
Мы составляем честную смету, которая не растет в процессе работы, и прикрепляем ее к договору.
Все работы под ключ
От фундамента до финишной отделки. Выполняем 100% строительных работ в рамках одной компании.
Личный кабинет
Все работы отражаем в личном кабинете клиента на сайте. Удобно следить за ходом стройки онлайн.
Гарантия 14 лет
Гарантия равна сроку существования компаниии. Она закрепляется в договоре.
Обсудим проект вашего дома?
Оставьте заявку, и мы обсудим ваш бюджет и пожелания, сориентируем по стоимости и срокам строительства.
Заполняя форму, вы соглашаетесь на обработку персональных данных.
Запросите консультацию
С удовольствием расскажем об особенностях выбора материалов
Павел Сухинин
Ведущий специалист
Каркасная технология
Недорого, быстро. Строим даже зимой!
MHM-панели
Экологично, без усадки, панели заводской готовности.
Клееный брус
Не деформируется, не трескается, почти без усадки.

2 квартал 2023 г. 150 м²


4 квартал 2023 г. 150 м²


4 квартал 2023 г. 150 м²


4 квартал 2023 г. 150 м²


2 квартал 2023 г. 150 м²


3 квартал 2023 г. 150 м²

Запишитесь на экскурсию по готовым объектам
Хотите посмотреть построенные нами дома и оценить качество строительства вживую? Просто заполните форму.
Заполняя форму, вы соглашаетесь на обработку персональных данных.
Каркасные дома, при условии соблюдения технологии их строительства и корректного использования, сохраняют свои свойства на протяжении не менее 30 лет.
Да, каркасные дома можно строить в любое время года, в том числе зимой.
Наши архитекторы помогут вам доработать типовой проект таким образом, чтоб учесть все ваши пожелания.
Да, мы можем спроектировать и возвести дом с нуля до полной готовности – с сетями и отделкой.
Строим по всей России. Стеновые материалы можем отправить в любую точку нашей страны и мира.